Donnerstag, 5. Januar 2012

Was lange währt, wird endlich gut: Finale Grundrisse





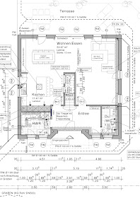
Viiiiiiieeeeeel Zeit haben wir in die Ausplanung der Grundrisse gesteckt. Zu Beginn hatten wir noch gar keine konkrete Vorstellung. Wie viel Platz brauchen wir, wie viele Räume, wie sollen diese angeordnet sein… Fragen über Fragen und unzählige Fragezeichen im Gesicht! :-)  Ganz akribisch und bis ins kleinste Detail wurde dann jeder Raum durchdacht. Zunächst versuchten wir diverse Anordnungsmöglichkeiten in Photoshop zu simulieren. Das hat uns jedoch in der Kreativität eher gebremst. Also back to the roots… Maßstabsgetreu haben wir den Grundriss vergrößert und ausgedruckt und dann ging die Bastelstunde los. Mögliche Trennwände und Möbel wurden gezeichnet und ausgeschnitten. So konnten wir diese beliebig auf dem Grundriss hin und her bewegen und verschiedene Varianten ausprobieren. Unglaublich wie viele Möglichkeiten es gibt. Eine Wand anders verschoben und schon ändert sich das gesamte Raumgefühl.  An der Badplanung sind wir kurzzeitig „verzweifelt“, aber wir haben stets mit Humor weiter gegrübelt. Bis wir mit dem Resultat voll und ganz und kompromisslos zufrieden waren.  Es war eine sehr amüsante und kreative Planungsphase. Auf diese Art haben wir am Ende den für uns perfekten Grundriss erarbeitet. Ganz nach unseren individuellen Bedürfnissen. Die finalen Ergebnisse haben wir dann in Photoshop verarbeitet und an Viebrockhaus weitergeleitet. Mehrere Zeichungsentwürfe und Korrekturschleifen folgten. Zum Glück kamen von der Statik keine Einwände und alles konnte wie von uns gewünscht umgesetzt werden. Im Nachhinein wurden natürlich immer wieder "Kleinigkeiten" geändert. Z.B. haben wir nach einem weiteren Besuch der Musterhäuser in Bad Falligbostel spontan das geplante Büro im EG gestrichen, so dass wir jetzt unten einen großen und komplett offenen Wohn- und Essbereich haben. Vor ca. drei Wochen hatten wir dann doch noch kurzfristig eine letzte Änderung im OG. Eine ursprünglich gesetzte Wand zwischen Schlaf- und Ankleidezimmer sollte gänzlich entfallen. Da aber Viebrockhaus die gesamte Planung vor allem die Statikberechnung abgeschlossen hat, mussten wir für diese Änderung 300 € bezahlen. Der Entfall der Wand erforderte nämlich eine erneute Statikberechnung. Ist ärgerlich, aber nachvollziehbar. Und da wir das Ankleidezimmer extra von einem Tischler bauen lassen musste die Wand auf jeden Fall weg. :-)

1 Kommentar:

  1. Tolle Anregung mit dem Basteln, das werden wir auch ausprobieren. Mal sehen, ob wir auch so kreativ sind. Sehr gelungen eure Grundrisse und ganz schön groß. Viel Erfolg zum Baubeginn. (Ina & Lars)

    AntwortenLöschen